Soho PT
Skip to content Skip to footer

Mathematical Institute – University of Oxford

Description

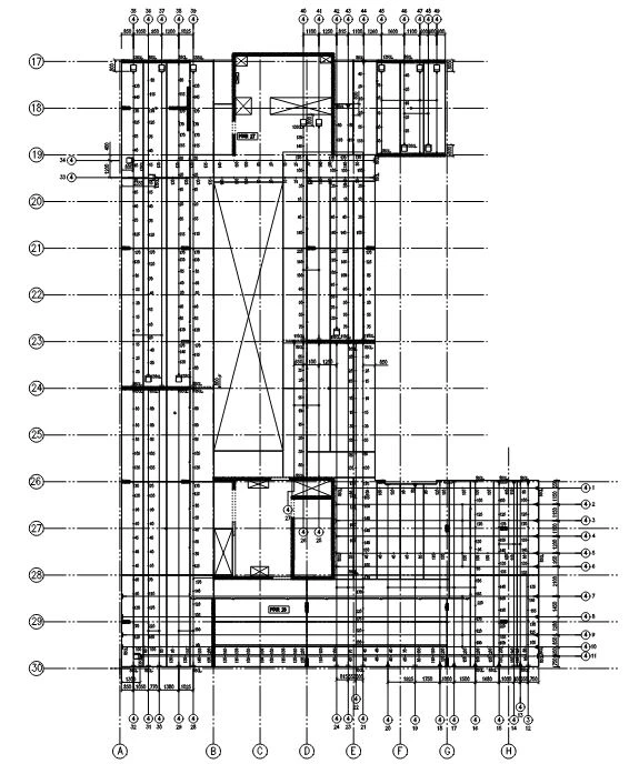
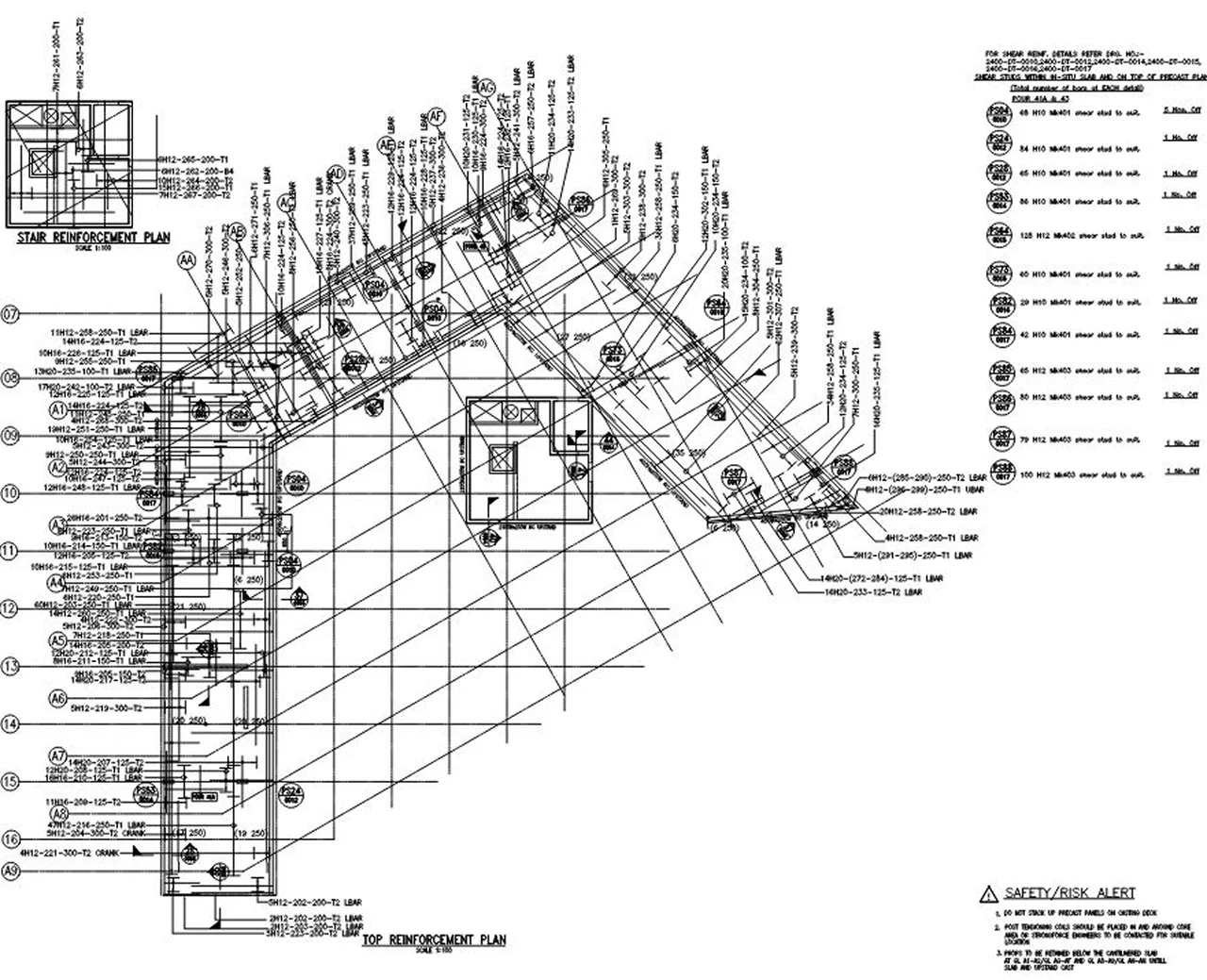
This Project has 5 levels of PT slabs and 4 combined pours. Completed in 2011 using 3 & 4 mono strand anchors with loose reinforcement.

Project Images

Go to Top