Soho PT
Skip to content Skip to footer

Imperial West Building

Description

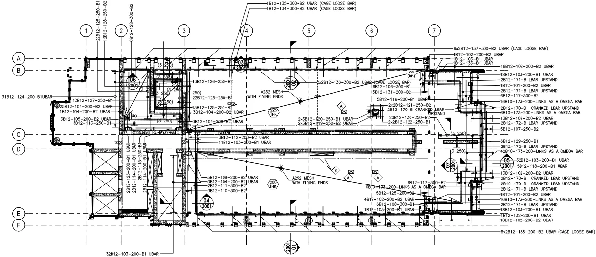
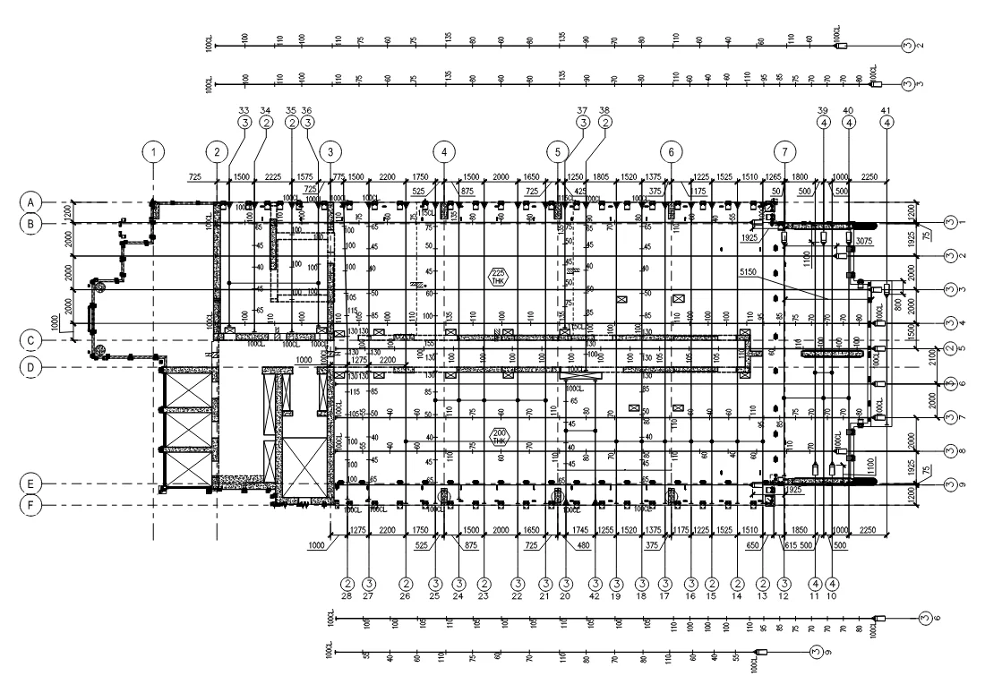
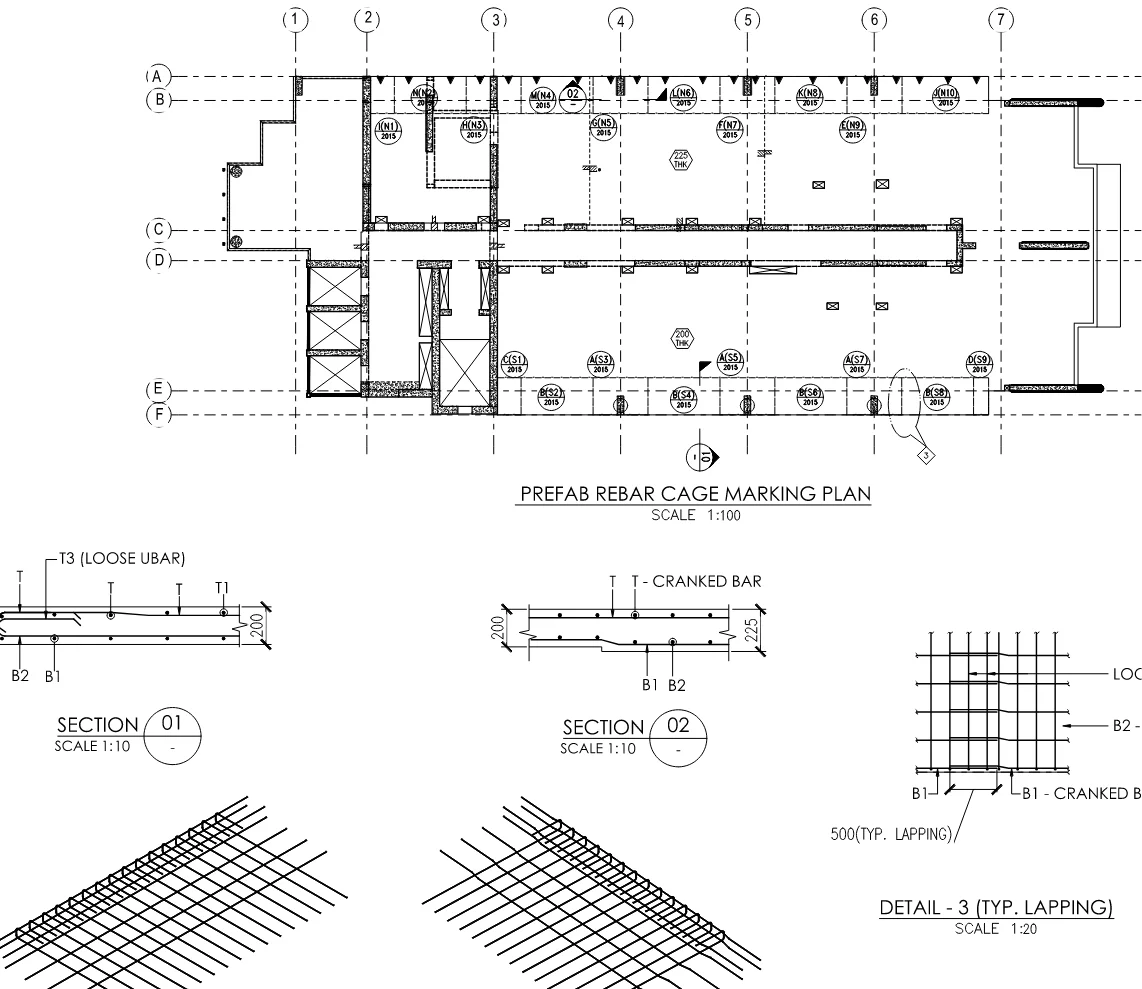
Imperial West F had 34-storey project with PT slabs and cantilever arrangements. Completed in 2016 using 2, 3 & 4 mono strand anchors with prefabricated cage reinforcement.

Project Images

Go to Top