Soho PT
Skip to content Skip to footer

Blavatnik

Description

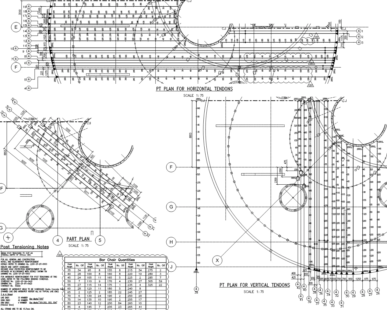
The project comprises full-circle and half-circle shaped PT slabs at the fourth floor. It utilised 3 & 4 mono strand anchors with loose reinforcement. The design was completed in 2014.

Project Images

Go to Top