Soho PT
Skip to content Skip to footer

25-27 Chatham Place

Description

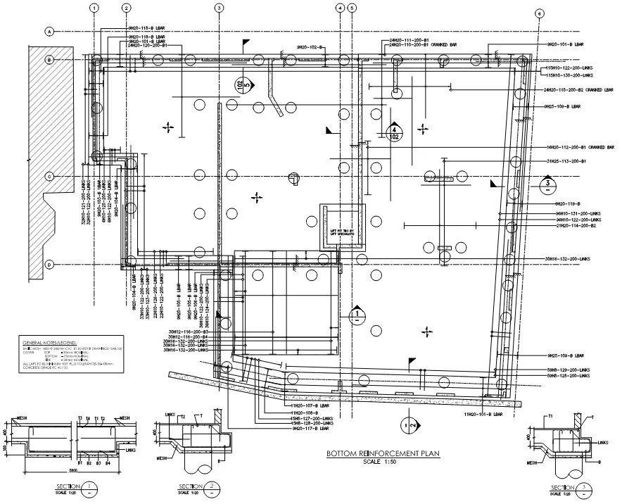
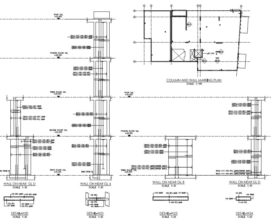
This project includes 3 levels of PT slabs. The detailing of the PT slabs, along with 2D rebar detailing for the piles, foundations, walls, columns and beams, was completed in 2014. The design incorporated 3 and 4 mono strand anchors with loose reinforcement.

Project Images

Go to Top